Italiano
English
135.000 €

LOMAZZO MANERA NUOVO TRILOCALE PIANO PRIMO CON BOX

3 locali in vendita • Lomazzo - Via Roma
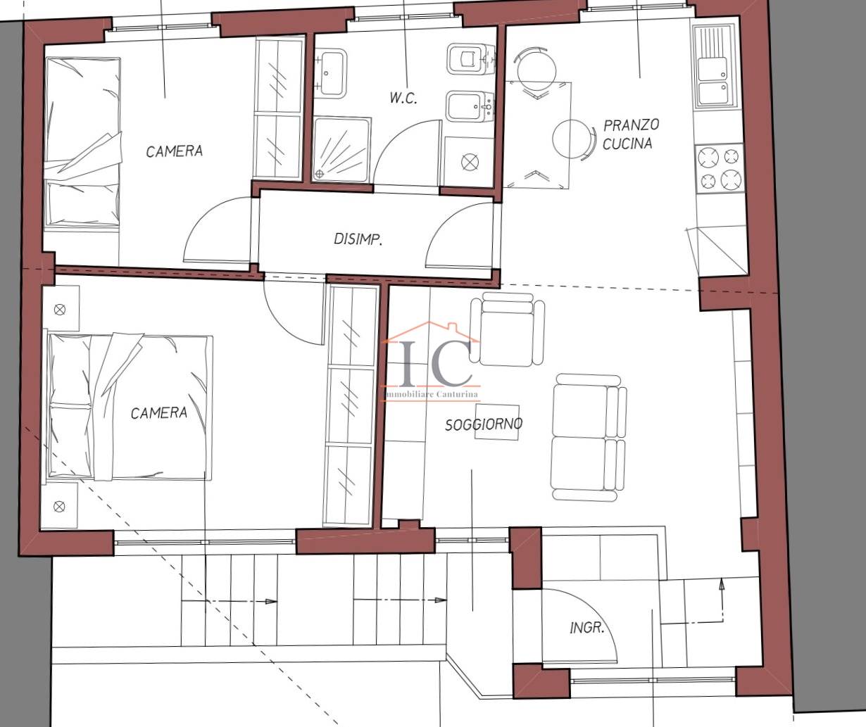
In contesto di corte tranquilla, proponiamo trilocale al piano primo attualmente in fase di ristrutturazione, completo di box. L’appartamento, caratterizzato da suggestive travi a vista, è situato in una posizione strategica e comoda con l’ingresso autostradale e la stazione, a soli 10 minuti da Saronno. L’immobile è termoautonomo, dotato di riscaldamento a pavimento con pompa di calore, ed è così composto: soggiorno con cucina a vista, due camere e bagno con un ripostiglio al piano terra. Ottima soluzione anche come investimento. Possibilità di scelta delle finiture. Certificazione energetica in fase di valutazione. Richiesta: €135.000,00 Per informazioni o appuntamenti: Oscar Colombo Immobiliare Canturina 3393686507

Il presente annuncio non costituisce alcun vincolo contrattuale e tutte le caratteristiche inerenti gli immobili pubblicati e le misure eventualmente rilevate o indicate devono considerarsi indicative.

Caratteristiche principali
Codice
V002014
Città
Lomazzo
Categoria
3 locali
Prezzo
135.000 €
Locali
3
Camere
2
Bagni
1
Mq
85
Box
1
Mq Box
18
Balconi
1
Mq Balcone
6
Piano
1
Classe energetica
In fase di valutazione
Stato Immobile
In Costruzione
Grado
Economico
Posizione
Centro Storico
Panorama
Vista Aperta
Lati Liberi
2
Tipo Soggiorno
Soggiorno
Tipo Cucina
A Vista
Riscaldamento
Autonomo
Tipo Riscaldam.
Pompa di Calore
Tipo Impianto
Pavimento
Fonte Energetica
Fotovoltaico
Acqua Calda
Autonoma
Infissi
PVC Doppio Vetro
Serramenti
Nuovo
Accesso Disabili
No

Accessori: Doppi Vetri, Impianto Fotovoltaico, Impianto Satellitare, Porta Blindata

Mappa
Via Roma , Lomazzo (CO)
Richiedi informazioni
Invia
Condividi su
Cookie preference