Italiano
English
248.000 €

BREGNANO NUOVO TRILOCALE CON TERRAZZO

3 locali in vendita • Bregnano - viale Lombardia
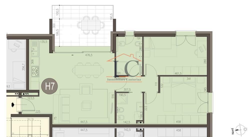
In tranquilla zona residenziale a due passi dal centro proponiamo elegante trilocale al piano primo co terrazzo, all’interno di una piccola palazzina di nuova costruzione. L’abitazione è composta da ingresso, luminoso soggiorno con cottura affacciato sul terrazzo, due camere da letto e doppi servizi. La soluzione è ideale per chi cerca comfort, modernità e spazi esterni vivibili. L’immobile presenta ottime finiture e le più recenti tecnologie dedicate al risparmio energetico: riscaldamento a pavimento, pompa di calore, impianto fotovoltaico e pannelli solari. Classe energetica A4. Richiesta: Euro 248.000,00 Possibilità di box. Per informazioni o appuntamenti Oscar Colombo 3393686507
Il presente annuncio non costituisce alcun vincolo contrattuale e tutte le caratteristiche inerenti gli immobili pubblicati e le misure eventualmente rilevate o indicate devono considerarsi indicative.

Caratteristiche principali
Codice
V001959
Città
Bregnano
Categoria
3 locali
Prezzo
248.000 €
Locali
3
Camere
2
Bagni
2
Mq
90
mq Terrazzo
8
Piano
1
Classe energetica
A3
Stato Immobile
In Costruzione
Grado
Signorile
Posizione
Periferia
Panorama
Vista Aperta
Lati Liberi
2
Tipo Soggiorno
Soggiorno
Tipo Cucina
Angolo Cottura
Riscaldamento
Autonomo
Tipo Riscaldam.
Pompa di Calore
Tipo Impianto
Pavimento
Fonte Energetica
Fotovoltaico
Acqua Calda
Autonoma a Pannelli
Infissi
PVC Doppio Vetro
Serramenti
Nuovo
Persiana
Oscurante Metallo
Accesso Disabili
Nessuna Barriera
Accesso interno disabili
Pieno accesso
Isolamento
Presente
Isolamento termico
Cappotto esterno
Isolamento acustico
Isolamento pareti
VMC
Si

Accessori: Antifurto, Aria Condizionata, Cancello Elettrico, Doppi Vetri, Impianto Fotovoltaico, Impianto Satellitare, Pannelli Solari, Passaggio Pedonale, Porta Blindata, Tapparelle Elettriche, Tavolini Esterni, Video Citofono

Mappa
viale Lombardia , Bregnano (CO)
Richiedi informazioni
Invia
Condividi su
Cookie preference